Forside
Faciliteter
Plantegning
Priser og lejevilkår
Spørgsmål og svar
Kontakt
Skjult Side
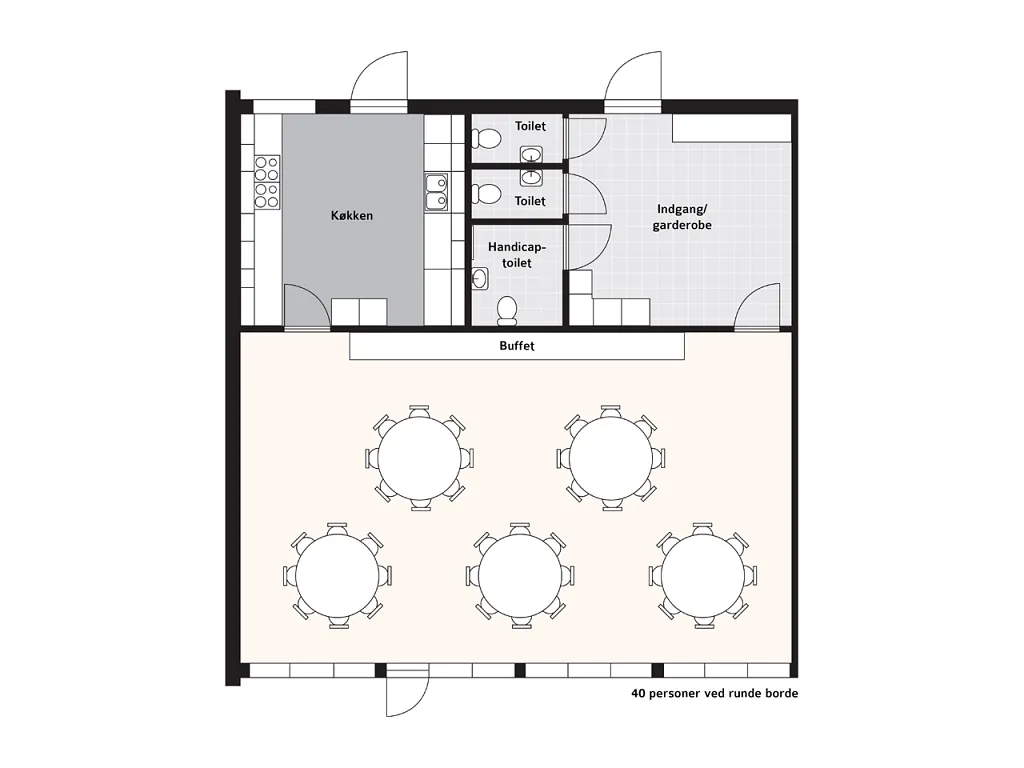
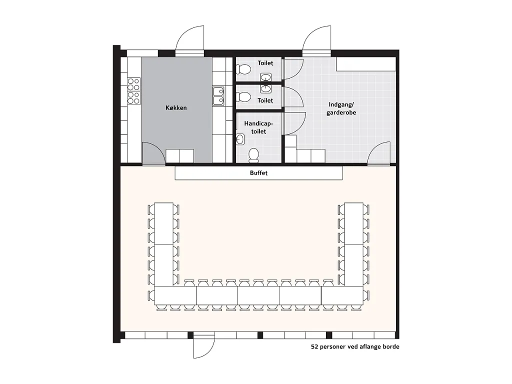
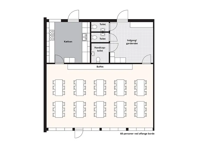
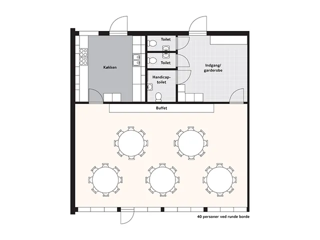
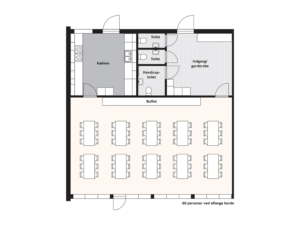
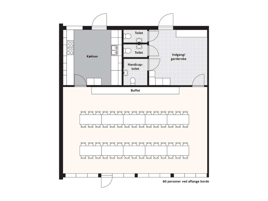
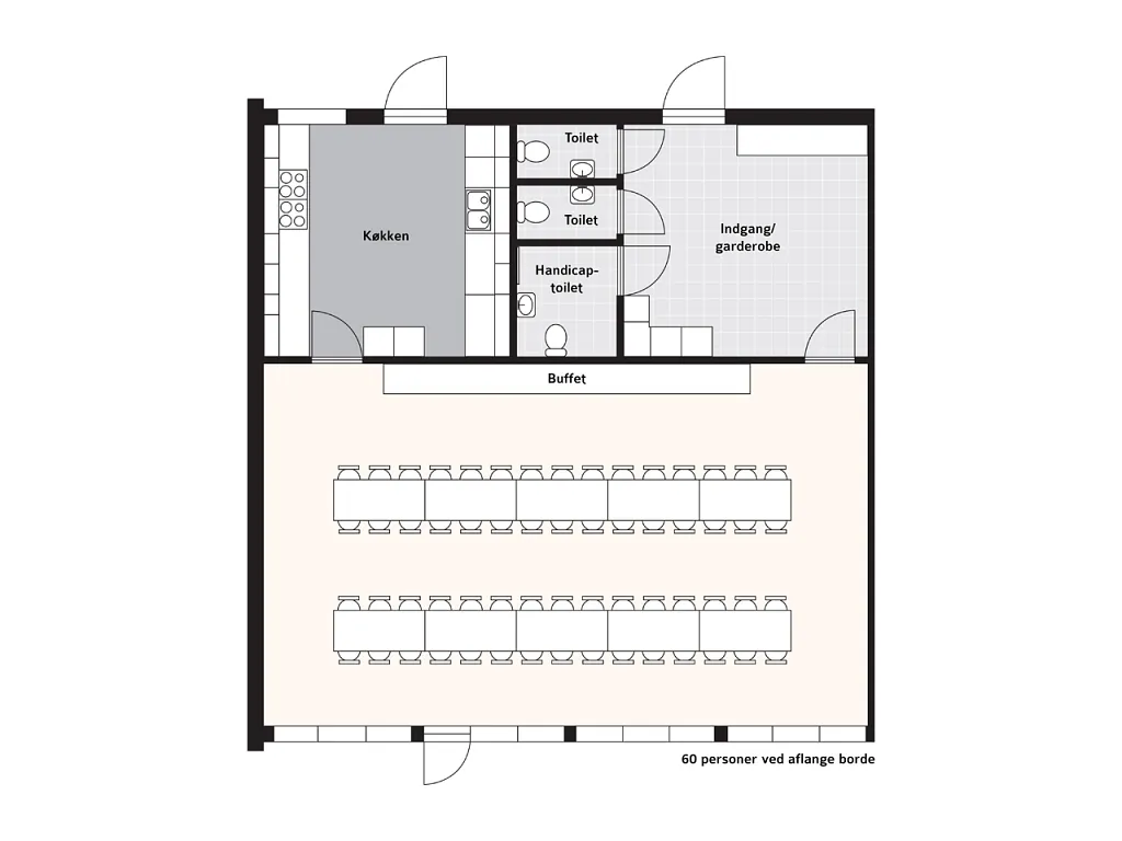
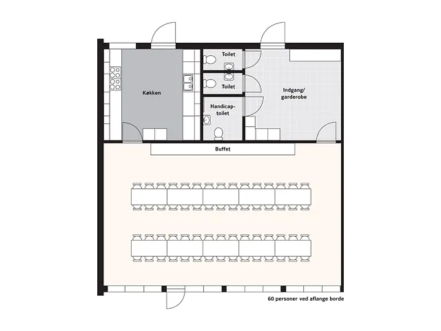
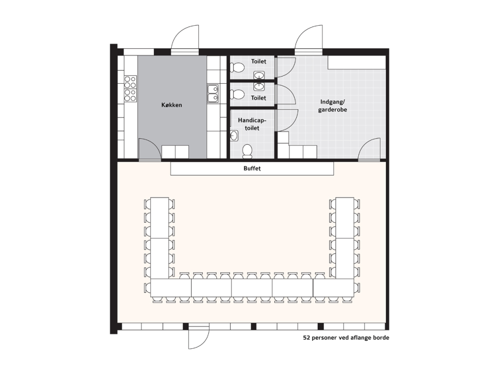
Forslag til bordopstilling
Klik på tegningerne
40 pers. ved runde borde
60 pers. ved aflange borde
52 pers. ved aflange borde
60 pers. ved aflange borde